CURRENT AVAILABILITIES

Browse Commercial Properties that we lease and represent across Toronto and the GTA.

RETAIL SPACES | OFFICE SPACES

RETAIL SPACES I FOR LEASE

RESTAURANT OPPORTUNITY, YORK MILLS CENTRE, TORONTO

SUMMARY

York Mills Centre is a multifaceted commercial complex renowned for its comprehensive range of amenities and services, which cater to both the local workforce and local residential community. Positioned strategically near Yonge Street and highway 401, the centre is a transportation hub offering convenient access to all corners of the city and Greater Toronto Area. The complex also benefits from direct access to both the TTC and Go Transit, making it a prime location for commuter traffic of every kind. YMC boasts a substantial 450,000 square feet of office space, attracting a significant volume of professionals and employees on a daily basis. The complex is strategically located to serve a substantial population within a 5 km radius, estimating around 386,000 residents. The immediate 2 km radius stands out for its high average household income, surpassing $228,000 per annum. York Mills Centre enjoys prominent corner exposure ensuring great visibility. This opportunity holds special appeal for distinctive restaurants seeking to benefit from prominent corner exposure, on site traffic, and being located in a business hub essential to opening opportunities for networking events, client meetings, and social gatherings. Adjacent to the complex, the “Yonge City Square” project by the Gupta Group is under development, with an estimated completion year of 2027. This new residential condominium project, comprising two towers and a total of 704 suites, is expected to contribute to increased local population.

  • SQ FT: 564,000

  • PRICE: CONTACT LISTING BROKER

  • TMI: TBC

DOWNLOAD BROCHURE

GET IN TOUCH.

Learn more about this listing by reaching out to our expert agents for exclusive insights into our listed properties, guiding you seamlessly towards the perfect opportunity for your business.

CORY ROSEN
SENIOR VICE PRESIDENT

SALES REPRESENTATIVE
C: 416-523-7749
crosen@cubecom.ca

COOPER BLUME
SALES REPRESENTATIVE
C: 416-566-8217
cblume@cubecom.ca

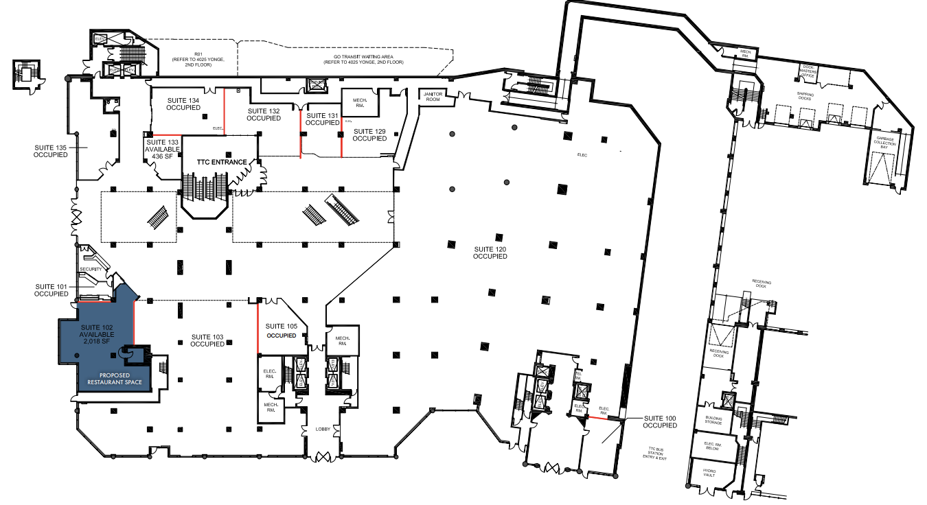
F L O O R P L A N S

SITE PLAN - FIRST FLOOR

SPACE PLAN

 

4025 YONGE STREET, TORONTO